1241 จำนวนผู้เข้าชม |
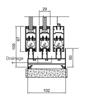
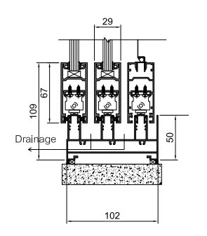
รางล่าง มีให้เลือกตั้งแต่ 2-7ราง โดยมาตรฐานจะอยู่ที่ 3 ราง ขนาดรางกว้าง 100 มม. เต็มขอบความกว้างปูน มาพร้อมกับรางมุ้งขนาดเดียวกับรางหน้าต่าง-ประตู สามารถเลือกติดมุ้งเลื่อน/มุ้งพับจีบได้ น้ำในรางจะถูกระบายออกทางห้องรับน้ำด้านล่าง และเจาะระบายออกทางด้านหน้าราง ปิดความเรียบร้อยด้วยฝาปิดรูระบายน้ำ



รางบน ถูกออกแบบให้มีเส้นรับบานทั้งด้านในและนอก แนวเส้นที่ยาวตลอดแนววงกบบน จะช่วยเพิ่มความปลอดภัย กันไม่ให้บานตกออกจากราง และยังทำหน้าที่เป็นกันสาดกันน้ำเข้าที่หัวบาน ซึ่งจำเป็นอย่างยิ่งกับบ้านสไตล์โมเดิร์นที่ไม่มีชายคาหรือชายคาสั้น

บานหน้าต่าง-ประตูเลื่อน
บานหน้าต่างหน้าตัด 67 มม. หนา 1.5 มม. และประตูหน้าตัด 77 มม. หนา 2.0 มม. ขึ้นไป รองรับกระจกหนา 5-22 มม. พร้อมล้อไนล่อนวิ่งบนรางสแตนเลส รับน้ำหนักบานได้มากถึง 300 กก. และสูงได้ถึง 4เมตร
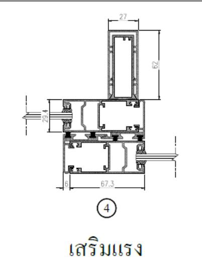
สำหรับบานที่มีขนาดใหญ่พิเศษ สามารถติดเส้นเสริมแรงเพื่อเพิ่มความแข็งแรงให้กับบาน และรับแรงลมได้ดียิ่งขึ้น โดยมีขนาดเส้นเสริมแรงให้เลือกใช้ตามความเหมาะสม และสามารถทำประตูเลื่อนปิดชนมุม 90 องศาได้

อุปกรณ์และวัสดุเสริม
มือจับ มีให้เลือกใช้ทั้งแบบฝัง แบบด้ามจับ และแบบแท่ง ตามความเหมาะสม ใช้ได้กับระบบล็อคจุดเดียวและล็อคหลายจุด โดยจำนวนจุดล็อคจะขึ้นอยู่กับความสูงขอบบาน
ยางดำ เสริมทั้งด้านนอกและด้านในบาน เพื่อช่วยยึดกระจกให้แน่น กันเสียง กันซึม และกันฝุ่นได้ดี เป็นยางที่มีคุณสมบัติในการทนแดดและความร้อน อายุการใช้งานยาวหลายปี
สักหลาด เลือกใช้แบบที่มีฟินกันน้ำ เสริมรอบที่ร่องบานทั้งด้านในและด้านนอก เพื่อช่วยลดทอนเสียงรบกวน และกันการเสียดสีของบานกับราง